创维液晶彩电采用的5800-P32TQF-00系列电源板,常见型号有5800- P32TQF- 0010、5800-P32TQF-0020、5800-P32TQF-0030, 将电源电路+背光灯逆变器合并在一起,常称整合板或IP板,具有电路简洁、功耗小、故障率低的优点。三种型号的二合一电源板结构和原理基本相同,应用于创维32L01HM、32S16IW等8M18机心和部分8M19机心液晶彩电中。创维5800-P32TQF-00xx系列二合一电源板实物图解如图1所示;电路组成框图如图2所示。
  
 
创维5800P32TQF-00xx系列二合一电源板由三部分组成: 一是以厚膜电路FSQ110 (U8) 为核心组成的副开关电源,为主板上微处理器控制系统提供+5V供电,同时为PFC电路和主开关电源驱动控制PWM电路提供18V左右的VCC工作电压;二是以驱动控制电路FAN7530 (U3) 和大功率MOSFET (开关管)Q5为核心组成的PFC电路,校正后为主开关电源提供约380V的工作电压;三是以驱动控制和大功率厚膜电路FSQ0565R (U1)为核心组成的主开关电源,为负载电路提供+ 12V、+24V 电压。
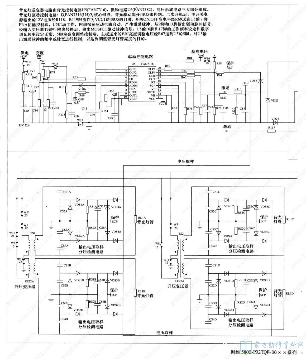
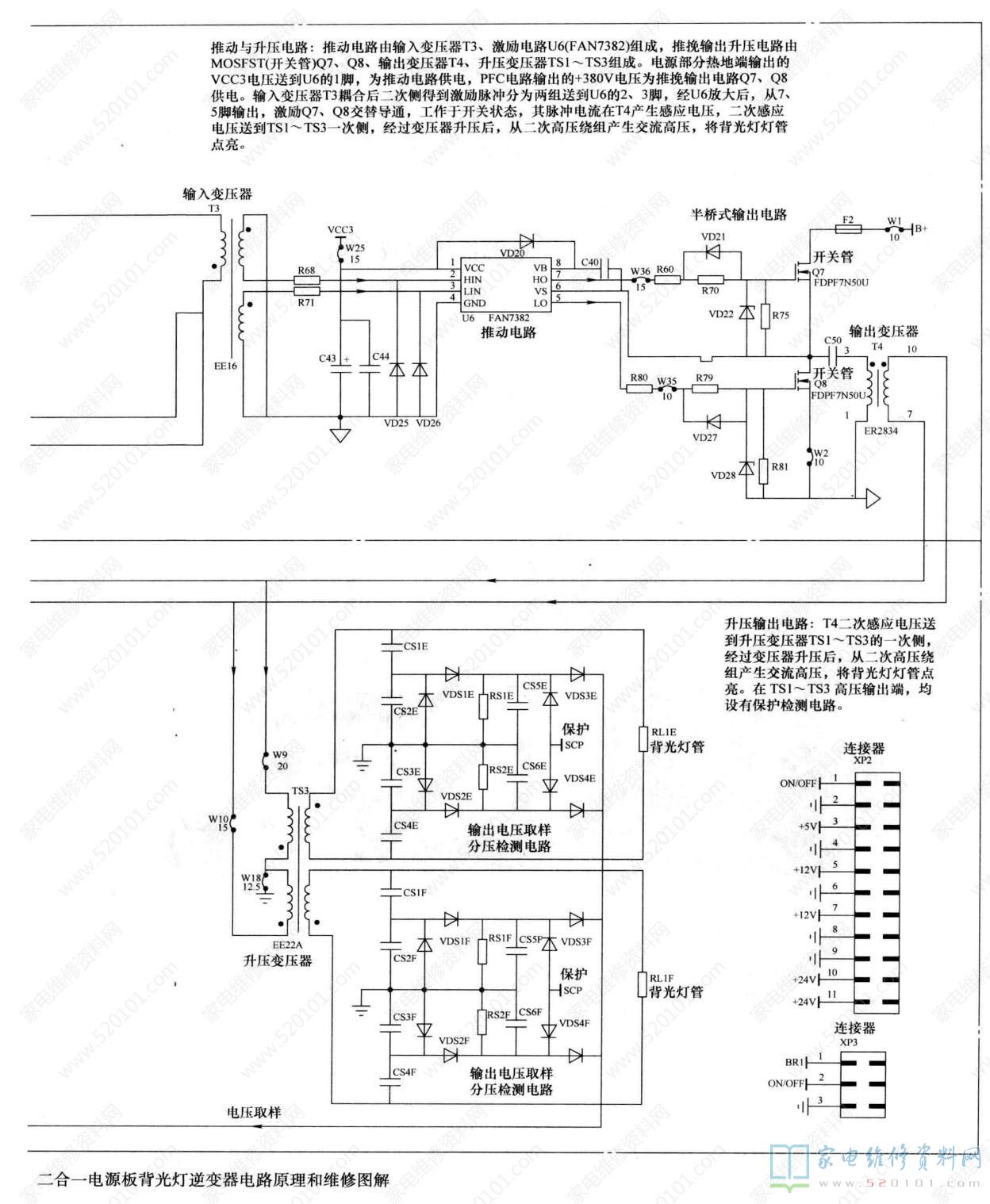
背光灯逆变器电路主要由背光控制电路U5 (FAN7316)、激励电路U6 (FAN7382)、 高压形成电路三大部分组成。二次开机后,主开关电源输出的12V电压经R118、R119 限流作为vCC1送到U5的11脚;电源部分热地端输出的VCC3电压送到U6的1脚,为推动电路供电,PFC电路输出的+380V电压为推挽输出电路开关管Q7、Q8供电;开机ON/OFF高电平经R69送到U5的7脚ENA使能控制端,U5启动工作,从9脚和13脚输出驱动脉冲信号,经输人变压器T3隔离转换后,二次侧得到的激励脉冲分为两组送到U6的2、3脚,经U6放大后,从7、5脚输出,激励Q7、Q8交替导通,工作于开关状态,其脉冲电流在输出变压器T4产生感应电压,二次感应电压送到升压变压器TS1 ~TS3的一一次侧,经过变压器升压后,从二次高压绕组产生交流高压,将背光灯灯管点亮。
开关机采用控制PFC电路U3和主开关电源驱动电路U1供电的方式。接通市电电源后副电源首先工作,产生VCC和+5V电压,其中+5V电压为控制系统提供电源,二次开机后开关机控制电路将VCC电压送到U3和U1, PFC 电路和主电源启动工作,为整机提供+12V、+24V 电压,进人开机状态。
创维5800-P32TQF-00x x系列二合一电源板在电源电路和背光灯逆变器电路,均设有保护电路:一是在电源部分设有以V5为核心的保护电路:VD14和VD15分别是24V和12V的过电压保护取样的稳压二极管。当其中-组电压升高时,相关稳压二极管击穿,VD17或VD18导通,高电平电压加到V5基极,V5导通,将副电源稳压光耦合器U7的1脚电压拉低,U7 截止,控制副电源厚膜电路U8的3脚电压上升,内部保护电路启动,开关电源停止工作,实现保护。二是在背光灯逆变器电路设有过电压保护电路:当升压变压器二次侧输出的高频交流电压过高时,经分压电容产生取样电压,送到US的18脚和19脚作为保护取样电压,当该脚电压超过1.75V后,电路就会保护无输出。U5 的12脚和19-20脚为开灯保护输人脚,当保护电路检测到故障,1-2 脚和19-20脚电压低于1.5V时,U5内部保护电路启动,U5没有脉冲输出。该电源板的集成电路引脚功能和对地电压见表1 ~表4。
  
 
1.指示灯不亮
如果发生指示灯不亮的故障,故障范围在副电源部分。-是测量U8的6~8脚有无300V电压,如果无300V电压,检查AC220V市电整流滤波电路的输出端有无300V电压输出,无300V电压输出,检查市电输人电路和整流桥是否发生开路故障,如果熔丝熔断,说明电源板存在严重短路故障;二是检查U8的5脚有无启动电压,无启动电压,检查U8的5脚外部的R29、R30是否开路和烧断;三是检查副电源的稳压控制电路U7、06, 检测U8的各脚电压和对地电阻,并判断U8是否损坏,必要时,更换U8试试;四是检查副开关电源+5V的负载电路控制系统是否发生严重短路故障,严重短路会造成副电源无电压输出。
2.指示灯亮
指示灯亮,主电源无+24V、+ 12V直流电压输出,则是主电源故障。一是测量U1的3脚有无vcc供电,如果有VCC供电,则测U1的外部电路和稳压控制电路,必要时更换Ul;如果无VCC供电,检查由V3、V6、VDI9组成的稳压控制电路和由V4、U4组成的开关机控制电路。二是检查主开关电源的负载电路控制系统是否发生严重短路故障。主开关电源二次整流二二极管VD3、VD8、C11、 C18、C17 容易损坏,VD3、VD8和CRT电视机用的整流二极管是有区别的,这里用的整流二极管为肖特基二极管,特点为正向压降低、电流大。
3.自动关机
如果开机后自动关机,多为保护电路启动引起。测量过电压保护电路V5的基极电压由正常时的0v变为0.7V以上,则是过电压保护电路启动,可接假负载,将V5的基极对地短路,解除保护,测量主电源输出电压。如果输出电压过高,检查主电源稳压控制电路;如果输出电压正常,检查过电压保护电路元器件,特别是检测电路的稳压管VD14、VD15 是否漏电。
4.逆变器故障
对背光灯电路的维修,应本着从外到内、从简到繁的原则。先仔细观察灯管是否点亮,如果灯管点亮,但黑屏幕,则是信号处理板电路发生故障;如果电源部分输出电压正常,只是背光灯不亮,则是道变器板电路发生故障;如果背光灯亮后熄灭,则是背光灯保护电路启动。对于开机瞬间点亮的机器,通过观察液晶屏亮度是否均匀(观察背光源亮度时眼睛必须与液晶屏平视),就可以大致判断哪个背光灯管没有点亮,把没有点亮的那个灯管插头插到可以点亮的背光灯升压板的插座上。如果背光灯管开机瞬间还是没有点亮,那么问题一定是在背光灯管上。对于背光灯一直都不亮的机器,我们可以通过测量背光灯的工作条件来判断。一是检查驱动控制电路U5的11脚12V电压是否正常;二是检查U5的10脚基准电压是否为6V;三是检查U5的7脚点灯ON/OFF电压是否大于2V, 7脚电压大于2V,U5才能开始工作;四是检查U5的5脚亮度调整电压是否正常。对于保护故障,则检测U5的1、2、19、 20脚电压是否大于1V, 7脚电压是否大于2V,10 脚基准电压是否为6V,18 脚保护电压是否小于2V。如果上述保护引脚电压异常,则是灯管电路或升压电路发生故障,引起保护电路启动。
创维5800-P32TQF-00x x系列二合一电源板电路原理和维修图解如图3和图4所示;背光灯逆变器电路原理和维修图解如图5所示。
 
								



